Page 1 sur 2
angle cardre

Posté:
27 Jan 2011, 10:55
de Frykosolex35

les gens! En pleine conception de cadre, je me demande quel angle de chasse vous avez? J'arrive presque a 60°et je trouve ca énorme comparé aux valeurs de certain (22° vu sur un ancien forum).

des vos reponses
Re: angle cardre

Posté:
27 Jan 2011, 11:09
de Frykosolex35
pas 60° mais 30°!

Re: angle cardre

Posté:
27 Jan 2011, 12:46
de solex166
salut,
en effet, 30degrés ça me parait un peu beaucoup, mais tout dépend ce que tu compte faire comme courses, et quelle catégorie tu vises.
de plus, selon moi, l'angle de chasse est un parametre influent, mais tu dois prendre en compte d'autre parametres sur l'avant de ta machine pour le déterminer. j'ai remarqué entre autres que le positionnement du moteur dans la fourche à une influence énorme sur la stabilité, plus encore que l'angle de chasse.
Re: angle cardre

Posté:
27 Jan 2011, 13:21
de Frykosolex35
je concois un proto pour les Rn,S donc etant donné que le circuit tournicotte pas mal, il faut que le sox soit assez vif. A mon avis c'est le centrage des masses qui influe sur la stabilité, de plus l'inertie du volant magnétique a également une influance sur la stabilité du cadre, en fonction de l'emplacement de ce dernier.
Re: angle cardre

Posté:
27 Jan 2011, 13:25
de Clefd'treize
Moi j'e suis à peu prêt à 22°(le cadre d'origine est à 22°), certain sont à 24°. Mais comme le dis Mathieu, ya pas que l'angle de chasse qu'il faut prendre en compte, le déport lui aussi est important.
J'ai prévu une fourche réglable en déport pour le mien parceque je me doute que les premiers essais me feront faire des modifs (que j'espère pas top nombreuses).
La position du moteur (donc son poids) sur la fourche influ aussi sur la maniabilité, la hauteur du guidon par rapport à la selle...Un guidon plus large aussi influra sur le comportement de ta machine, bref, trop de paramètres différents, à mon avis un bon cadre ne se fait que rarement du premier coup...faut pas rêver.

Re: angle cardre

Posté:
27 Jan 2011, 14:31
de StefTeam
22° ce sera assez vif, 24° plus stable moi j'ai 22,5°
L'important c'est la chasse soit la distance au sol entre la verticale de l'axe de roue devant lequel doit tomber le projection de l'axe de la colonne de direction (50mm environ). Si c'était l'inverse le cadre serait inconduisible.
Re: angle cardre

Posté:
27 Jan 2011, 19:10
de Frykosolex35
c'est sur le déport doit etre négatif, sinon ca guidonne dès que tu poses le pneu par terre! Quoique cetaines anciennes voitures americaines (buick il me semble) avec des gros V8 avais un déport positif sinon avec le poids du moteur tu pouvais pas tourner le volant! Par contre fallait pas le lacher sinon tu partais dans la décor au moindre bout de ligne droite...
Re: angle cardre

Posté:
27 Jan 2011, 19:13
de solex166
Frykosolex35 a écrit:je concois un proto pour les Rn,S donc etant donné que le circuit tournicotte pas mal, il faut que le sox soit assez vif. A mon avis c'est le centrage des masses qui influe sur la stabilité, de plus l'inertie du volant magnétique a également une influance sur la stabilité du cadre, en fonction de l'emplacement de ce dernier.
pour le rns, on a un angle de chasse de 18 degrés et un déport de 40mm, pour l'un des solex les plus vifs et maniables présents. cela dit, en contrepartie, cela nécessite d'étre toujours vigilant a plus haute vitesse.
je pense que 22 degrés serait un bon compromis pour le rns. les autres vous avez combien au rns???
Re: angle cardre

Posté:
27 Jan 2011, 21:37
de Frykosolex35
avec 18°faut mettre un amortisseur de direction et hop plus de pb

!
Re: angle cardre

Posté:
27 Jan 2011, 22:32
de Frykosolex35
Clefd'treize a écrit:J'ai prévu une fourche réglable en déport pour le mien parceque je me doute que les premiers essais me feront faire des modifs (que j'espère pas top nombreuses).
Comment tu fais ca?
Re: angle cardre

Posté:
28 Jan 2011, 12:06
de Clefd'treize
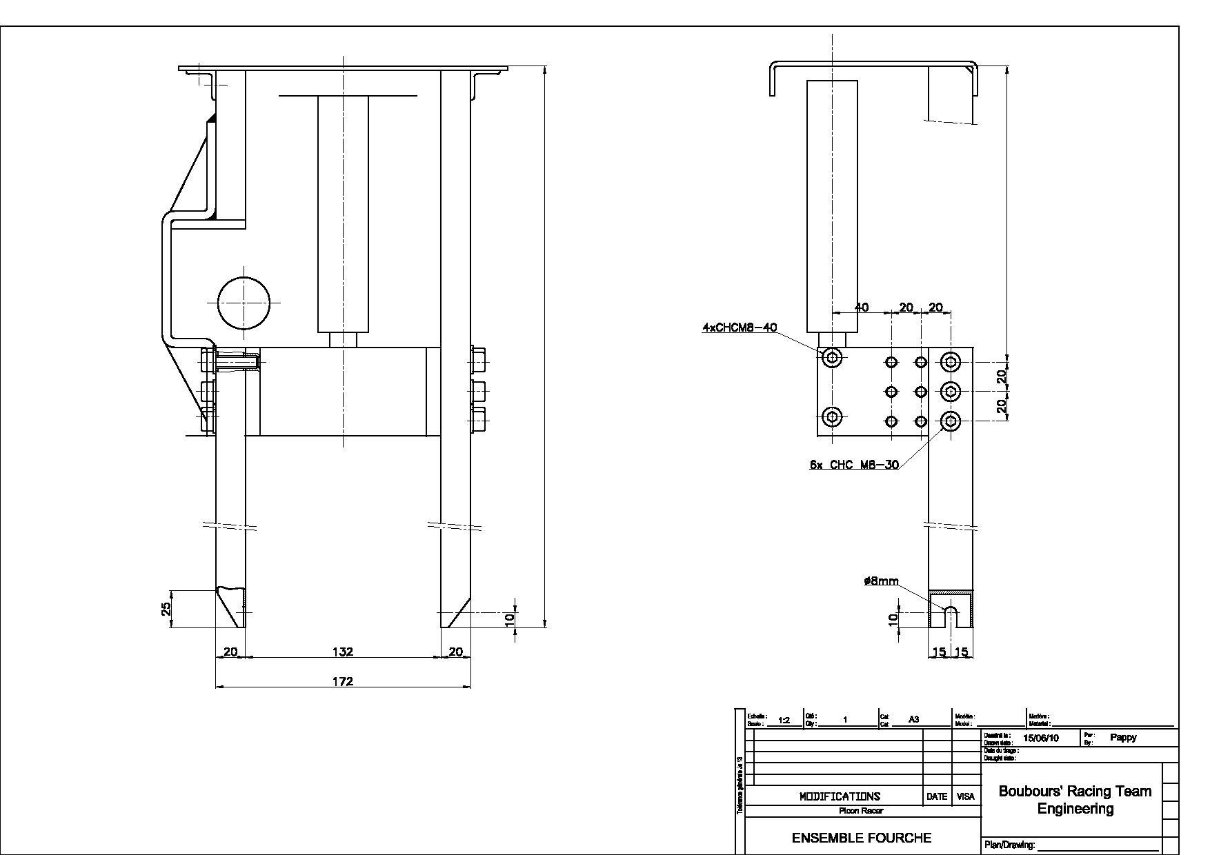
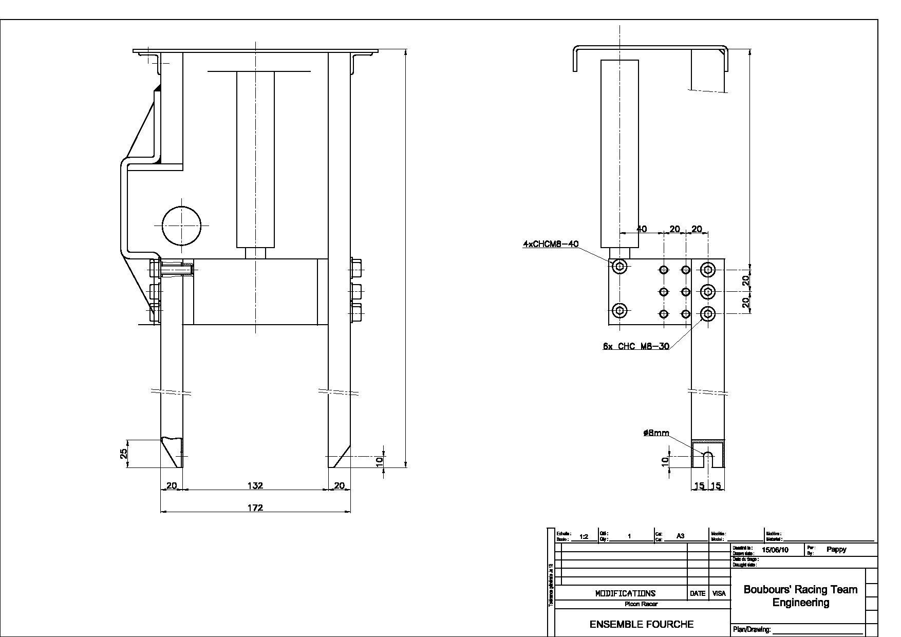
En fait ma fourche a des bras droits fixés au Té d'origine par deux fer plats 80x10 et à une tôle supérieures sur laquelle je monte le guidon.
J'ai plusieurs rangées de trous taraudés ce qui me permet de régler mon déport: 40-60-80mm.
En espérant que le liens fonctionne sinon files moi ton adresse mail.

- Etude fourche 1.1.jpg (131.88 Kio) Vu 10734 fois
Re: angle cardre

Posté:
28 Jan 2011, 12:11
de Clefd'treize
Merde trop grand...
Si un modo peut me venir en aide pour réduire tout ça il sera le bienvenu.
Les experts en proto vous emballez pas, c'était un premier jet.

Re: angle cardre

Posté:
28 Jan 2011, 12:42
de pitou49
Nous, nous avons environ 21° sur tous nos cadres.
Par contre, nous avons des moteurs plus ou moins avancés sur le pneu, donc plus ou moins loin de la colonne de direction.
Notre cadre endurance, avec un moteur très avancé, est très stable sur l'angle, mais se montre beaucoup trop "pateau" sur des circuits sinueux (genre Ancenis ou Plessé quand il y a beaucoup de changements d'angle rapide).
C'est pour ça que j'ai fait un cadre spécifique pistes de kart. Les valeurs de géométrie restent proche du cadre endurance :
Angle de chasse : - 0.3 °
Chasse : - 2 mm
Empattement : - 4 mm
Mais surtout : Distance moteur / colonne : - 60 mm
Ceci mêlé à un cadre très rigide, c'est un régal sur piste, mais inconduisible sur route (ça saute de partout à la moindre bosse).
+1 pour ce que dis Steph. Attention à la valeur de la chasse. J'ai lu que en moto, l'idéal est d'avoir une chasse confortable en accélération (fourche détendue) pour la stabilité, et une chasse égale à "0" en freinage (fourche comprimée) de façon à pouvoir entrer pleine angle en virage et en freinant.
Re: angle cardre

Posté:
28 Jan 2011, 12:53
de Clefd'treize
Mon moteur aussi est avancé sur l'avant du fait de la fourche droite. Pour garder un truc maniable, j'ai "travaillé" sur le guidon, type Ace-Bar, c'est assez large et ça se place naturellement pour chaque pilotes.
Re: angle cardre

Posté:
28 Jan 2011, 14:19
de Frykosolex35
J'ai remodifié mes angles du coup j'arrive a 23° de chasse et 25 mm de déport, cette valeur me semble un peu juste c'est pour ca que j'aurai aimé savoir comment tu changes le déport en gardant l'angle de chasse constant. Tu n'aurai pas une vue de droite de ta fourche?

bien. Sinon niveau guidon le mien étant un guidon street de Z750 retaillé pour pouvoir etre conforme au reglement UFOLEP (750mm) ca devrai aller niveau maniabilité...